top of page
Cedar Residence
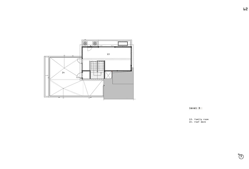
This residential project for a single family is situated just two blocks from the beach. The new construction aims to enlarge the current first-level dining area and introduce three bedrooms on the second floor. Moreover, there are plans for a family room and a rooftop deck offering a scenic ocean view on the third level.






bottom of page


